
■ 概述
ZZYVP-16B(ZZDQ)氮封阀是本厂自主开发、研制的一套自力式微压力控制系统,主要用于保持容量顶部保护气(一般为氮气)的压力恒定,以避免容量内物料与空气直接按触,防止物料挥发、被氧化,以及容器的安全。特别适用于各类大型储罐的气封保护系统。该产品具有节能、动作灵敏、运行可靠、操作与维修方便等特点。氮封阀被广泛应用于石油、化工等行业。
■ 特点
·无需外加能源,能在无电、无气的场合工作,既方便,又节约能源,降低成本;
·氮封装置供氮、泄氮压力设定方便,可在连续生产的条件下进行;
·压力检测膜片有效面积大,设定弹簧刚度小,动作灵敏,装置工作平稳;
·采用无填料设计,阀杆所受磨擦力小,反应迅速,控制精度高;
·供氮装置采用指挥器操作,减压比可达100:1,减压效果好,控制精度高;
·为确保储罐的安全,需在罐顶设置呼吸阀;
·呼吸阀仅起安全作用,避免了常规氮封装置中启闭频繁易损坏的缺陷。
■ 结构与工作原理
氮封装置是由供氮装置(见图一)和泄氮装置(见图二)两部分组成。供氮装置由指挥器和主阀两部分组成;泄氮装置由反馈的压开型微压调节阀组成。氮气压力一般设为100mmH2O,通过氮封装置精确控制。
当储罐进液阀开启,向罐内添加物料时,液面上升,气相部分容积减小,压力升高,当罐内压力升至高于泄氮装置压力设定值时,泄氮装置打开,向外界释放氮气。使罐内压力下降,降至泄氮压力设定点时,泄氮装置自动关闭。
当储罐出液阀开启,用户放料时,气相部分容积增大,罐内压力降低,供氮装置开启,向储罐注入氮气,使罐内压力上升,当罐内压力上升至供氮装置自动关闭。
■ 供氮装置工作原理
氮封装置结构(见图四),将设在罐顶的取压点的介质经导压管引入检测机构(7)、介质在检测元件上产生一个作用力与弹簧(8)、预紧力相平衡。当罐内压力降低至低于供氮装置压力设定点时,平衡破坏,使指挥器阀芯(6)打开,使阀前气体经减压阀(5)、节流阀(4)、进入主阀执行机构(3)上、下膜室,打开主阀阀芯(2)、向罐内充注氮气;当罐内压力升至供氮装置压力设定点,由于预设弹簧力,关闭指挥器阀芯(6)、由于主阀执行机构中弹簧作用,关闭主阀,停止供氮。
■ 泄氮装置工作原理
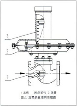
泄氮装置结构(见图五),该装置采用内反馈结构,介质直接经阀盖进入检测机构(2),介质在检测元件上产生一个作用力与预设弹簧(3)预紧力平衡。当罐内压力升高至高于泄氮装置压力设定点时,平衡被破坏,使阀芯(1)上移,打开阀门,向外界泄放氮气;当罐内压力降至泄氮装置压力设定点,由于预设弹簧力作用,关闭阀门。
■ 说明
·一般供氮气压力在3×105~10×105Pa之间;
·罐顶呼吸阀仅起安全作用,是在主阀失灵,导致罐内压力过高或过低时,起到安全作用,在正常情况下不工作;
·泄氮阀安装在罐顶,口径一般在进液阀口径一致;
·一般泄氮阀的压力设定点略大于供氮阀的压力设定点,以免供、泄氮装置频繁工作,浪费氮气、影响设备使用寿命。
·若用户工况有与选型手册有异,望来电与本厂技术开发部联系,协商解决。
■主要技术参数及性能指标
1 供氮装置主要技术参数及性能指标
| 公称通径DN(mm) | 25 | 32 | 40 | 50 | 65 | 80 | 100 | ||||||||
| 阀座直径dn(mm) | 5 | 6 | 7 | 8 | 10 | 12 | 15 | 20 | 25 | 32 | 40 | 50 | 65 | 80 | 100 |
| 额定流量系数Kv | 0.2 | 0.32 | 0.5 | 0.8 | 1.8 | 2.8 | 4.4 | 6.9 | 11 | 20 | 30 | 48 | 75 | 120 | 190 |
| 额定行程L(mm) | 8 | 10 | 14 | 20 | 25 | ||||||||||
| 流量特性 | 快开 | ||||||||||||||
| 压力调节范围(kPa) |
0.4~5.5、5~10、9~14、13~19、18~24、22~28 27~33、31~38、36~44、42~51、49~58、56~66 |
||||||||||||||
| 公称压力PN(MPa) | 1.6 2.5 4.0 | ||||||||||||||
| 被调介质温度(℃) | ≤80 | ||||||||||||||
| 调节精度(%) | ±5% | ||||||||||||||
| 允许泄漏等级 | 标准级:Ⅳ级(GB/T4213-92) 严密型:Ⅵ级(GB/T4213-92) | ||||||||||||||
2泄氨装置主要技术参数及性能指标
| 公称通径DN(mm) | 20 | 25 | 32 | 40 | 50 | 65 | 80 | 100 |
| 额定流量系数Kv | 6.9 | 11 | 30 | 30 | 48 | 75 | 80 | 190 |
| 额定行程L(mm) | 8 | 10 | 14 | 20 | 25 | |||
| 流量特性 | 快开 | |||||||
| 压力调节范围(kPa) |
0.4~5.5、5~10、9~14、13~19、18~24、22~28 27~33、31~38、36~44、42~51、49~58、56~66 |
|||||||
| 公称压力PN(MPa) | 0.1 | |||||||
| 被调介质温度(℃) | ≤80 | |||||||
| 调节精度(%) | ±5% | |||||||
| 允许泄漏等级 | 标准级:Ⅳ级(GB/T4213-92) 严密型:Ⅵ级(GB/T4213-92) | |||||||
■ 主要零件材料
阀 体:ZG230-450、ZG1Cr18Ni9Ti
阀内件:1Cr18Ni9Ti
膜 盖:A3、1Cr18Ni9Ti
膜 片:夹增强涤纶织物丁腈橡胶、氟橡胶
弹 簧:60Si2Mn、1Cr18Ni9Ti
﹡根据用户要求,阀体、阀内件、膜盖可采用其它牌号材质。
|
■ 外形尺寸及重量 1供氮装置外形尺寸及重量
2泄氮装置外形尺寸及重量
■ 连接尺寸及标准
·连接方式:法兰、螺纹 |
![]()
|
■ ZZYVP-16B(ZZDQ)氮封装置型号编制说明
ZZYVP-16B(ZZDQ)供氮装置型号编制说明
ZZYVP-16B(ZZDQ)泄氮装置型号编制说明
例:
型号为:025×015ZZYVP-16B(ZZDQ)16S0.5~5.5-1P表示公称通径(DN)为25mm,阀座直径(dg)为15mm,公称压力(PN)为1.6MPa,连接法兰按制造厂标准,压力调节阀范围为0.5~5kPa,供氮压力为1kPa,阀体材质为ZG1Cr18Ni9Ti的一套供氮装置;
型号为:040ZZYVP-16B(ZZD)×1.0S0.5~5.5-1.5P表示公称通径(DN)为40mm,公称压力(PN)为0.1MPa,连接法兰按制造厂标准,压力调节阀范围为0.5~5kPa,泄氮压力为1.5kPa,阀体材质为ZG1Cr18Ni9Ti的一套泄氮装置;
■ 订货须知
·装置名称、型号
·供氮、泄氮装置公称通径DN(mm)
·供氮、泄氮装置公称压力PN(MPa)
·供氮、泄氮装置额定流量系数(Kv)
·供氮、泄氮装置固有流量特性
·供氮、泄氮装置压力设定点
·介质名称
·工作压力及调节范围
·阀体、阏内件及填料材质
·其它特殊要求
查看PDF版本:
ZZYVP-16B(ZZDQ)型氮封装置.pdf