

■ 概述
ZZYP、ZZYN、QFY系列阀内取压型重油专用减压稳压阀是不需要任何外加能源,利用被调介质自身能量而自动调节的执行产品,它沿用自力式减压原理,采用平衡式结构。与传统的非平衡式结构相比,具有更高的精度(误差≤5%),更强的抗干扰能力(阀前压力波动时,阀后压力稳定特殊性),当流量较稳定时,控制精度高达5%,阀本身采用内取压方式,无须另配取压管。该阀设定压力方便,无须停机现场手动连续可调(在一定的范围内)。
其执行机构可采用不同的结构(膜片、活塞、波纹管),可用于不同的温度和压力。
■ 结构
调压说明:拧开压套16,旋转螺杆15。顺时针旋转时,压力升高,逆时针旋转时,压力降低!
■ 主要技术参数
| 公称通径mm | 10 | 15 | 20 | 25 | 32 | 40 | 50 | 65 | 80 | 100 | 125 | 150 | 200 | 250 |
| 额定KV | 1.8 | 4.4 | 7 | 11 | 20 | 32 | 48 | 75 | 120 | 190 | 300 | 320 | 1100 | 1750 |
| 公称压力MPa | 1.6 2.5 4.0 6.4 | |||||||||||||
| 额定行程mm | 4 | 5 | 5 | 6 | 6 | 7 | 8 | 8 | 10 | 10 | 12 | 12 | 15 | 18 |
| 工作温度℃ 执行机构形式 |
膜片式(-20~80) 活塞式(-30~100) 波纹管式(-250~550) | |||||||||||||
| 调节精度 | 2-3% | |||||||||||||
| 泄漏量等级 | V级(硬密封) 无泄漏(软密封) (GB/T4213-92) | |||||||||||||
| 安装方式 | 法兰或螺纹 | |||||||||||||
■ 主要零件材料
| 零件名称 | 零件材料 |
| 阀体 | ZG230-450 ZG1Cr18Ni9Ti |
| 阀座 | 1Cr18Ni9Ti |
| 膜片 | 丁腈橡胶夹增强涤纶织物、金属膜片 |
| 膜盖 | Q235 0Cr18Ni9 |
■ 安装与使用
1、阀前一般要安装截止阀,以便检修与更换阀门。
2、介质不洁净时,阀前应装过滤器。
3、当发现阀后压力与要求值有偏差或需要改变压力输出值时,可以调整弹簧的压缩量来达到目的。
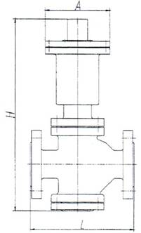
■ 外型尺寸
| DN | L | H | A | ![]() | |
| PN16/PN40 | PN64 | ||||
| 10 | 180 | 190 | 450 | 120 | |
| 15 | 180 | 190 | 450 | 120 | |
| 20 | 180 | 190 | 450 | 120 | |
| 25 | 185 | 200 | 450 | 120 | |
| 32 | 200 | 210 | 500 | 150 | |
| 40 | 220 | 235 | 550 | 150 | |
| 50 | 230 | 265 | 580 | 180 | |
| 65 | 275 | 295 | 600 | 180 | |
| 80 | 300 | 320 | 850 | 200 | |
| 100 | 350 | 370 | 950 | 220 | |
| 125 | 410 | 440 | 1000 | 250 | |
| 150 | 450 | 475 | 1050 | 250 | |
| 200 | 550 | 570 | 1100 | 300 | |
| 250 | 670 | 670 | 1210 | 300 | |
■ 连接尺寸及标准
法兰标准:法兰按GB9113-88
法兰密封面型式:PN10、PN16为凸面;PN40、PN64为凹凸面、阀体为凹面
﹡阀体法兰及法兰端面距离可以按用户指定的标准制造。如:ANSI、JIS、JPI等标准
■ 订货须知
订货时请用户提供以下资料:
·调节阀名称、型号
·公称通径(mm)
·公称压力(MPa)
·阀前压力,阀后压力
·额定流量系数(Kv)
·介质名称及状态
·工作温度(℃)及范围
查看PDF版本:
ZZYP、ZZYN、QFY系列阀内取压型重油专用减压稳压阀.pdf