
■ 概述
ZSHV型系列气动V型球阀,球芯呈V型状,可实现线性调节,可调范围大。当阀门关闭时,V形缺口与阀座之间产生楔形剪切作用,具有自洁功能又可防止球芯卡死,特别适用于管线结垢冻结场合。适宜于控制纸浆、污水,含有纤维和颗粒固体悬浊介质及粉粒状介质。配用齿轮齿条式执行机构。结构简单,输出力矩大。本系列球阀按密封性能分为软密封和硬密封;按调节方式分为调节型和切断型,切断型按作用型分为单作用式和双作用式,调节型为双作用式。单作用式的独特优点是一旦动力源发生故障,球阀将按控制系统的要求自动处于开启或关闭位置。产品广泛应用于化工、石油、轻纺、电力、食品、制药、造纸、航空航天等控制领域中。
■ 主要技术参数和性能
|
型式 |
直通式铸造球阀 |
|||||||||||||
|
公称通径DN |
25 |
32 |
40 |
50 |
65 |
80 |
100 |
125 |
150 |
200 |
250 |
300 |
350 |
400 |
|
阀座直径 |
20 |
26 |
33 |
40 |
53 |
66 |
86 |
104 |
128 |
170 |
212 |
255 |
300 |
340 |
|
额定流量系数Kv |
25 |
36 |
63 |
100 |
184 |
280 |
400 |
600 |
950 |
1540 |
2500 |
3900 |
6150 |
9800 |
|
公称压力PN |
PN1.6, 6.4MPa |
|||||||||||||
|
泄漏量 |
软密封:≤1.8×10-7×△P×DN.l/h(试验介质为液体:式中△P为压差) |
|||||||||||||
|
气源压力 |
0.4~0.6MPa |
|||||||||||||
|
连接形式 |
对夹式、法兰式、管道法兰按JB79-59标准 |
|||||||||||||
|
适用温度 |
软密封-40~+180℃ 硬密封-40~+450℃ |
|||||||||||||
|
球芯转角 |
水、石油、硝酸类、醋酸类、粘性流体、浆料、强氧化性介质等 |
|||||||||||||
|
流量特性 |
近似等百分比(典型曲线圈见附录) |
|||||||||||||
|
阀体材质 |
铸钢、铸不锈钢 |
|||||||||||||
|
球芯型式 |
部分球带有V形缺口 |
|||||||||||||
|
阀座材料 |
聚四氟乙烯、不锈钢司钛莱硬合金 |
|||||||||||||
|
基本误差 |
≤全行程的±2%(带定位器) |
|||||||||||||
|
回差 |
≤全行程的2.0%(带定位器) |
|||||||||||||
|
死区 |
≤全行程的0.8%(带定位器) |
|||||||||||||
■ 主要配置附件
调节型:电气阀门定位器、空气过滤减压器、手轮机构等
准切断型:空气过滤减压器、电磁阀、阀位开关、手轮机构等
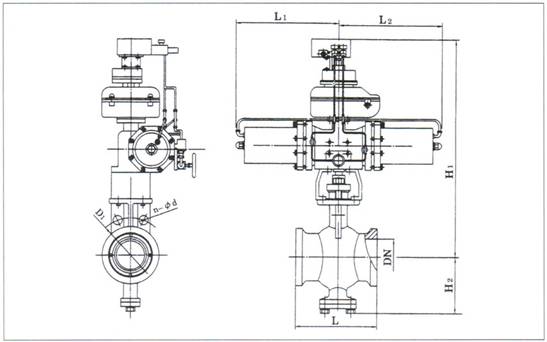
■ 外形及连接尺寸
ZSHV-16型
|
公称 |
L |
H1 |
H2 |
L1 |
L2 |
D1 |
n-d |
|||
|
单作用 |
双作用 |
单作用 |
双作用 |
单作用 |
双作用 |
|||||
|
25 |
102 |
388 |
359 |
60 |
125 |
56 |
125 |
56 |
85 |
4-14 |
|
32 |
102 |
396 |
396 |
65 |
125 |
96 |
125 |
96 |
100 |
4-18 |
|
40 |
114 |
406 |
406 |
75 |
125 |
96 |
125 |
96 |
110 |
4-18 |
|
50 |
124 |
484.5 |
484.5 |
95 |
159.5 |
123.5 |
159.5 |
123.5 |
125 |
4-18 |
|
65 |
143 |
526 |
499.5 |
105 |
200.5 |
123.5 |
200.5 |
123.5 |
145 |
4-18 |
|
80 |
165 |
743 |
536 |
120 |
324 |
150 |
644 |
150 |
160 |
8-18 |
|
100 |
194 |
756 |
549 |
140 |
324 |
150 |
644 |
150 |
180 |
8-18 |
|
125 |
213 |
809 |
773 |
165 |
398 |
324 |
627 |
324 |
210 |
8-18 |
|
150 |
229 |
993 |
793 |
185 |
556 |
324 |
776 |
324 |
240 |
8-23 |
|
200 |
243 |
1033 |
869 |
205 |
556 |
398 |
776 |
398 |
295 |
12-23 |
|
250 |
297 |
1080 |
1073 |
240 |
642 |
540 |
1016 |
540 |
355 |
12-25 |
|
300 |
338 |
1117 |
1113 |
290 |
759 |
540 |
1294 |
540 |
410 |
12-25 |
|
350 |
380 |
1326 |
1155 |
330 |
856 |
632 |
1399 |
632 |
470 |
16-25 |
|
400 |
420 |
1361 |
1190 |
360 |
856 |
632 |
1399 |
632 |
525 |
16-30 |
ZSHV-64型
|
公称通径DN |
L |
H1 |
H2 |
L1 |
L2 |
D1 |
n-d |
|||
|
单作用 |
双作用 |
单作用 |
双作用 |
单作用 |
双作用 |
|||||
|
25 |
102 |
451.5 |
388 |
60 |
159.5 |
96 |
159.5 |
96 |
100 |
4-18 |
|
32 |
102 |
499.5 |
396 |
65 |
159.5 |
96 |
159.5 |
96 |
110 |
4-23 |
|
40 |
114 |
496 |
406 |
75 |
324 |
96 |
200.5 |
96 |
125 |
4-23 |
|
50 |
124 |
718 |
484.5 |
95 |
324 |
123.5 |
644 |
123.5 |
135 |
4-23 |
|
65 |
143 |
733 |
626 |
105 |
398 |
150 |
644 |
150 |
160 |
8-23 |
|
80 |
165 |
779 |
743 |
120 |
556 |
324 |
627 |
324 |
170 |
8-23 |
|
100 |
194 |
956 |
756 |
140 |
556 |
324 |
776 |
324 |
200 |
8-25 |
|
125 |
213 |
973 |
809 |
165 |
642 |
398 |
776 |
398 |
240 |
8-30 |
|
150 |
229 |
1000 |
825 |
185 |
759 |
398 |
1016 |
398 |
285 |
8-34 |
|
200 |
243 |
1137 |
1033 |
205 |
759 |
540 |
1294 |
540 |
345 |
12-34 |
|
250 |
297 |
1177 |
1073 |
240 |
856 |
540 |
1294 |
540 |
400 |
12-41 |
|
300 |
338 |
1361 |
1120 |
290 |
632 |
1399 |
632 |
460 |
16-41 |
|
|
350 |
380 |
1252 |
330 |
759 |
759 |
525 |
16-41 |
|||
|
400 |
420 |
1287 |
360 |
759 |
759 |
585 |
16-48 |
|||
■ 订货须知
订货时请注明:
1、产品型号
2、公称通径阀座直径
3、公称压力
4、阀体和阀内组件材料
5、适用温度
6、调节方式
7、双作用或单作用(单作用请注明气开式或气闭式)
8、是否带附件
9、连接型式