
■ 概述
ZAZQ、ZAZX型电动三通合流、分流调节阀采用圆筒型薄壁窗口形阀芯导向。配用DKZ直行程电动执行机构,接受0~10或4~20mA.DC信号驱动阀门启闭。其中三通合流调节阀用于将两种流体混合成第三种流体,或不同温度的同种流体,混合成同一温度流体。三通分流阀将一种流体分成两路流体。
本系列产品口径由25mm至200mm,公称压力有1.0、1.6、4.0、6.4MPa,温度范围-60℃至450℃。控制信号为0~10或4~20mA.DC。配用不同的执行机构可分为普通型和电子型两种。
■ 特点
·流体对阀芯作用方向都处于流开状态,故工作稳定性好。
·除了阀盖处衬套导向外。阀芯侧面与阀座内表面也有导向作用,导向面积的大,工作可靠。
·伺服放大器采用深度动态负反馈,可提高调节精度。
·电动操作器有多种形式,可适用于4~20mA.DC或0~10mA.DC。
·电子型电动调节阀可直接由电流信号控制阀门开度。无需伺服放大器。
·节省自动化投资,与单座、双座或套筒调节阀相比,组成同样的系统可省掉一个阀,简化系统,节省投资。
·波纹管密封型对移动的阀杆形成完全的密封,杜绝流体外漏。
■ 主要零件材料
阀体、阀盖:HT200、ZG230-450、ZG1Cr18Ni9Ti
阀芯、阀座:1Cr18Ni9Ti,司太莱合金堆焊
软密封阀芯:增强聚四氟乙烯
填 料:聚四氟乙烯
推杆、衬套:2Cr13
■ 主要技术参数
| 公称通径DN(mm) | 25 | 32 | 40 | 50 | 65 | 80 | 100 | 125 | 150 | 200 | |
|
额定流量 系数Kv |
合流 | 8.5 | 13 | 21 | 34 | 53 | 85 | 135 | 210 | 340 | 535 |
| 分流 | 85 | 135 | 210 | 340 | 535 | ||||||
| 额定行程(mm) | 16 | 25 | 40 | 60 | |||||||
| 流量特性 | 直线、抛物线 | ||||||||||
| 工作温度(℃) |
普通型:铸铁:-20~200、铸钢:-40~250、铸不锈钢:-60~250 散热型:铸钢:-40~450、铸不锈钢:-60~450 |
||||||||||
| 介质温度(℃) | 200以下(对合流阀而言) | ||||||||||
| 固有可调比R | 30 | ||||||||||
| 公称压力PN(MPa) | 1.0、1.6、4.0、6.4 | ||||||||||
| 允许泄漏量 | 硬密封:Ⅱ、Ⅳ级 软密封:Ⅵ级 | ||||||||||
| 作用方式 | 电关式、电开式 | ||||||||||
| 信号范围(mA.DC) | 0~10、4~20 | ||||||||||
| 电源电压 | 220V、50Hz 380V、50Hz | ||||||||||
| 环境温度(℃) | 电动调节阀: 5~45 伺服放大器:-10~55 | ||||||||||
|
全行程 时间S |
12.5 | 20 | 32 | 48 | |||||||
| 30 | 30 | 48 | 60 | ||||||||
| 消耗功率(W) | 28 | 35 | |||||||||
| 6 | 15 | 25 | 40 | ||||||||
■ 配套用电动执行机构有关技术参数
| 公称通径DN(mm) | 25 | 32 | 40 | 50 | 65 | 80 | 100 | 125 | 150 | 200 | |
|
电动执行 机构型号 |
普通型 |
ZAZ-60 DKZ-310 |
DKZ-410 |
DKZ-410 DKZ-510 |
|||||||
| 电子型 | JHZAZ1 | JHZAZ2 | JHZAZ3 | JHZAZ4 | |||||||
|
电动执行 机构推力(N) |
普通型 |
400 4000 |
6400 |
6400 16000 |
|||||||
| 电子型 | 2000 | 4000 | 6000 | 8000 | |||||||
表中数据为常规配置,具体选用可根据主要参数用户要求而定。
■ 主要技术性能指标
·基本误差:±2.5%
·额定流量系数偏差;±10%
·回差:2%
·固有流量特性:符合IEC534-1和GB/T4213-92规定的斜率偏差要求。
·死区:3%
·额定行程偏差:+2.5%
■ 允许压差
|
公称通径DN(mm) 推力(N) |
25 | 32 | 40 | 50 | 65 | 80 | 100 | 125 | 150 | 200 |
| 400 | 0.57 | 0.37 | 0.24 | 0.15 | ||||||
| 2000 | 1.85 | |||||||||
| 4000 | 5.70 | 3.70 | 2.40 | 1.50 | ||||||
| 6000 | 1.31 | 0.9 | 0.56 | |||||||
| 6400 | 1.40 | 0.96 | 0.60 | 0.15 | 0.11 | 0.06 | ||||
| 8000 | 0.48 | 0.36 | 0.19 | |||||||
| 16000 | 0.96 | 0.71 | 0.38 |
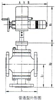
■ 外形尺寸及重量
普通型(单位:mm)
| 公称通径(DN) | 25 | 32 | 40 | 50 | 65 | 80 | 100 | 125 | 150 | 200 |
|
|
| A | 460 | 530 | 630 | |||||||||
| B | 230 | 230 | 260 | |||||||||
| H1 | 490 | 540 | 625 | |||||||||
| H2 | 246 | 259 | 273 | 311 | 354 | 366 | 448 | 512 | 587 | 759 | ||
| L | 160 | 180 | 200 | 230 | 290 | 310 | 350 | 400 | 480 | 600 | ||
| L1 | 121 | 130 | 140 | 153 | 180 | 225 | 250 | 316 | 372 | 444 | ||
|
重量 (kg) |
PN16/64 | 62 | 64 | 66 | 68 | 93 | 98 | 107 | 129 | 135 | 155 | |
| PN64 | 66 | 71 | 75 | 78 | 103 | 121 | 141 | 165 | 180 | 210 | ||
电子型(单位:mm)
| 公称通径(DN) | 25 | 32 | 40 | 50 | 65 | 80 | 100 | 125 | 150 | 200 |
|
|
| d | φ155 | φ162 | φ170 | |||||||||
| H3 | 290 | 325 | 380 | |||||||||
| L | 160 | 180 | 200 | 230 | 290 | 310 | 350 | 400 | 480 | 600 | ||
| L1 | 121 | 130 | 140 | 153 | 180 | 225 | 250 | 316 | 372 | 444 | ||
| H2 | 246 | 259 | 273 | 311 | 354 | 366 | 448 | 512 | 587 | 759 | ||
|
重量 (kg) |
PN16/64 | 22 | 25 | 26 | 28 | 50 | 56 | 63 | 70 | 80 | 95 | |
| PN64 | 26 | 30 | 35 | 37 | 60 | 68 | 88 | 100 | 125 | 140 | ||
■ 连接尺寸及标准
·法兰标准:铸铁法兰按GB4216.5-84
铸钢法兰按GB9113-88、JB/T79-94
·法兰密封面型式:PN10、PN16为凸面;
PN40、PN64为凹凸面、阀体为凹面。
·结构长度:按GB12221-89标准
·夹套保温型夹套载热体接口:对焊φ18×4
﹡ 阀体法兰及法兰端面距离可以按用户指定的标准制造。
如:ANSI、JIS、DIN等标准。
■ 订货须知
订货时请用户提供以下资料:
·调节阀名称、型号
·公称通径(mm)
·公称压力(MPa)
·额定流量系数(Kv)
·固有流量特性
·介质名称、阀前后压力、温度、流量等
·整机作用方式(电开、电关)及输入信号
·阀体、阀内件及填料材质
·附件(操作器、伺服放大器等)
·其它特殊要求
■ 型号
例
100ZAZX16KLO12SNO2DF为口径100mm的电动三通分流调节阀,公称压力1.6MPa,电开式(信号增加、阀杆上移),流量特性为线性,普通型执行机构铸钢阀体(工作温度-40~250℃),连接法兰按制造厂规格,非防爆要求,输入信号4~20mA.DC,附电动操作器,伺服放大器。